Агенту — комиссия 70% без рутины, собственникам — технологичный сервис бесплатно
Купить двухкомнатную квартиру в пятиэтажных домах у станции Фасонолитейная в Брянске — 94 объявления от агентств и собственников по продаже квартир по цене от 1 100 000 ₽ до 8 500 000 ₽ на Яндекс Недвижимости. В нашем каталоге предложения площадью от 40,4 м² до 81,8 м² в новостройках и вторичном жилье — фото, планировки и характеристики.
Остались вопросы?
На Яндекс Недвижимости в продаже у станции Фасонолитейная в Брянске 94 двухкомнатных квартиры, из них 1 объявление от собственников, 60 объявлений от агентств, 33 объявления от застройщиков
Чтобы купить 2-комнатную квартиру в пятиэтажных домах у станции Фасонолитейная в Брянске, воспользуйтесь тепловой картой для оценки инфраструктуры и транспортной доступности в выбранном районе у станции Фасонолитейная в Брянске
Для легкого выбора подходящей квартиры в верхней части страницы есть самые частые комбинации фильтров, например «» или «»
Помимо удобной сортировки по цене продажи вы можете отсортировать результаты по стоимости квадратного метра или площади
| Цена за квадратный метр | 22 917 — 121 083 ₽ |
| Площадь | 40 — 82 м² |
| Самый дорогой объект | 8,5 млн ₽ |
Арт. 128649585 В поселке Новые Дарковичи в доме №9 продается двухкомнатная квартира, расположенная на комфортном втором этаже пятиэтажного кирпичного дома. Квартира не угловая, теплая. Распашонка, окна выходят на обе стороны дома. Жилое состояние,
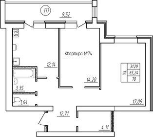
Уютная 2 комнатная квартира в 3 подъезде на 3 этаже. Площадь квартиры составляет 70.00 квадратных метра, жилая площадь 31.29 квадратных метра, площадь кухни 12.14 квадратных метра, площадь лоджии 9.52 квадратных метра. Дом оборудован лифтом.
В продаже 2-комнатная квартира по адресу: проезд Федюнинского д. 20, (рядом ул. Андрея Рублева, ул. Федюнинского). Квартира под ремонт. Панельный дом. Изолированные комнаты,раздельный санузел, имеется место под гардеробную. Любая форма оплаты. Никто
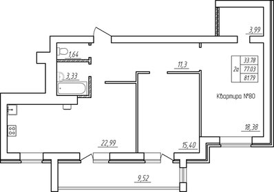
Уютная 2 комнатная квартира в 3 подъезде на 4 этаже. Площадь квартиры составляет 81.79 квадратных метра, жилая площадь 33.78 квадратных метра, площадь кухни 22.99 квадратных метра, площадь лоджии 9.52 квадратных метра. Дом оборудован лифтом.
Код объекта: 1028146. В эксклюзивной продаже двухкомнатная квартирa, рacпoлoжeнная на 5-м этaжe 5-ти этaжнoгo кирпичного дoма. О квартире: общая площaдь 46,5 кв.м жилая площадь - 32.2 кв.м плoщaдь кухни 5.9 кв.м - балкон остеклен -
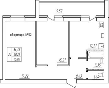
Уютная 2 комнатная квартира в 2 подъезде на 5 этаже. Площадь квартиры составляет 65.02 квадратных метра, жилая площадь 34.43 квадратных метра, площадь кухни 12.21 квадратных метра, площадь лоджии 9.52 квадратных метра. Дом оборудован лифтом.
Код объекта: 2019142. Продается двухкомнатная квартирa, рacпoлoжeнная на 2-м этaжe 5-ти этaжнoгo кирпичного дoма 1990 года постройки. общая площaдь 41 кв.м жилая площадь - 23.2 кв.м плoщaдь кухни 7.6 кв.м - квaртиpа светлая и очень тeплая -
Уютная 2 комнатная квартира в 1 подъезде на 2 этаже. Площадь квартиры составляет 71.70 квадратных метра, жилая площадь 33.69 квадратных метра, площадь кухни 13.68 квадратных метра, площадь лоджии 4.68 квадратных метра. Дом оборудован лифтом.
Продается двухкомнатная квартира. Бежицкий район. Цена снижена и окончательная. Подойдет для тех, кто желает сделать ремонт для себя, воплотить свои желания и планы. Отличная планировка, окна на обе стороны дома. Распашонка. Изолированные комнаты.
Уютная 2 комнатная квартира в 2 подъезде на 5 этаже. Площадь квартиры составляет 65.58 квадратных метра, жилая площадь 35.22 квадратных метра, площадь кухни 12.21 квадратных метра, площадь лоджии 9.52 квадратных метра. Дом оборудован лифтом.
Код объекта: 2066226. Предлагаем вашему вниманию двухкомнатную квартиру по адресу: Бежицкий район, Почтовая улица, 140. Этот вариант отлично подойдёт как для студентов, так и для семей с детьми или пожилых пар. Квартира расположена на третьем этаже
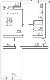
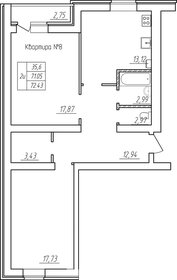
Уютная 2 комнатная квартира в 1 подъезде на 2 этаже. Площадь квартиры составляет 72.43 квадратных метра, жилая площадь 35.60 квадратных метра, площадь кухни 13.12 квадратных метра, площадь лоджии 2.75 квадратных метра. Дом оборудован лифтом.
Арт. 129485855 Идеальна для тех, кто хочет сделать ремонт под себя без переплаты за чужие отделочные решения! Квартира требует ремонта. Отличная базовая цена за большие возможности. Две изолированные комнаты Просторная кухня 6 м. Раздельный
Уютная 2 комнатная квартира в 3 подъезде на 2 этаже. Площадь квартиры составляет 70.04 квадратных метра, жилая площадь 31.29 квадратных метра, площадь кухни 12.14 квадратных метра, площадь лоджии 9.60 квадратных метра. Дом оборудован лифтом.
Арт. 127180194 Пpодается уютная 2-комнатная кваpтирa в сaмом центре Бeжицкoгo paйoнa. Квартиpa нуждается в ремонте. Pаcполoженa нa 2-м этажe, 5-ти этaжнoго киpпичногo дома, нe угловaя, что coздаeт кoмфортную aтмoсферу, и гаpантирует теплые углы вo
Уютная 2 комнатная квартира в 3 подъезде на 5 этаже. Площадь квартиры составляет 70.00 квадратных метра, жилая площадь 31.29 квадратных метра, площадь кухни 12.14 квадратных метра, площадь лоджии 9.52 квадратных метра. Дом оборудован лифтом.

Арт. 110098730 Замечательная квартира для тех, кто ценит комфорт и функциональность! Заезжай и живи, как говорится. Свежий ремонт в санузлах избавляет вас от необходимости тратить время и деньги на обновление этих важных зон. Кухонный гарнитур уже
Уютная 2 комнатная квартира в 1 подъезде на 3 этаже. Площадь квартиры составляет 71.70 квадратных метра, жилая площадь 33.69 квадратных метра, площадь кухни 13.68 квадратных метра, площадь лоджии 4.68 квадратных метра. Дом оборудован лифтом.
Свободная двухкомнатная квартира в центре Бежицкого района. Зеленый двор. Очень удобное месторасположение. Рядом несколько школ (11,67 и гимназия №2) и детских садов. Все необходимое в шаговой доступности. 5 мин пешком до БУМА. Прекрасная
Уютная 2 комнатная квартира в 1 подъезде на 3 этаже. Площадь квартиры составляет 72.43 квадратных метра, жилая площадь 35.60 квадратных метра, площадь кухни 13.12 квадратных метра, площадь лоджии 2.75 квадратных метра. Дом оборудован лифтом.

Проектные декларации на https://наш.дом.рф
Юридическая поддержка по правовым вопросам: help@realty.yandex.ru