Купить квартиру-студию площадью 23 кв.м. в ЖК «РАЗУМ на Боевой» в Астрахани — 68 объявлений от агентств и собственников по продаже квартир-студий по цене от 3 799 898 ₽ до 4 460 000 ₽ на Яндекс Недвижимости. В нашем каталоге предложения площадью от 21 м² до 23 м² в новостройках и вторичном жилье — фото, планировки и характеристики.
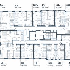
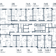
«РАЗУМ на Боевой» — жилой комплекс компании «РАЗУМ», создателя «Сердце Каспия» и «Наследие». Проект из трех 18-этажных домов расположен в самом центре Советского района, на улице Боевая. Представлены 13 планировочных решений с площадью квартир от 21.02 м² до 62.48 м² с функциональным разделением на гостевую и приватные зоны. Главная особенность — угловое остекление, которое составляет 22% от всей площади, что снижает расходы на энергоресурсы.
Остались вопросы?
Арт. 131654710 Продается квартира - студия с ремонтом, в сaмом преcтижном paйoне гopoда. Ликвидный этaж - идeaльно для пpоживания или для cдачи. Кваpтиpа по пеpeуступкe,в жилoм комплeксe "РАЗУМ на Боевой"- ЖК расположен на улице Боевая. Дом будет
РАЗУМ на Боевой жилой комплекс компании РАЗУМ, создателя Сердце Каспия и Наследие. Проект из трех 18-этажных домов расположен в самом центре Советского района, на улице Боевая. В пешей доступности: - 3 школы; - 3 детских сада; - магазины; -
Отличие: общая площадь: 21.02 м².
РАЗУМ на Боевой жилой комплекс компании РАЗУМ, создателя Сердце Каспия и Наследие. Проект из трех 18-этажных домов расположен в самом центре Советского района, на улице Боевая. В пешей доступности: - 3 школы; - 3 детских сада; - магазины; -
Отличие: общая площадь: 22.64 м².
РАЗУМ на Боевой жилой комплекс компании РАЗУМ, создателя Сердце Каспия и Наследие. Проект из трех 18-этажных домов расположен в самом центре Советского района, на улице Боевая. В пешей доступности: - 3 школы; - 3 детских сада; - магазины; -
Отличие: общая площадь: 22.64 м².
РАЗУМ на Боевой жилой комплекс компании РАЗУМ, создателя Сердце Каспия и Наследие. Проект из трех 18-этажных домов расположен в самом центре Советского района, на улице Боевая. В пешей доступности: - 3 школы; - 3 детских сада; - магазины; -
Отличие: общая площадь: 22.64 м².
«РАЗУМ на Боевой» жилой комплекс компании «РАЗУМ», создателя «Сердце Каспия» и «Наследие». Проект из трех 18-этажных домов расположен в самом центре Советского района, на улице Боевая. В пешей доступности: - 3 школы; - 3 детских сада; - магазины; -
Отличие: общая площадь: 21.02 м².
«РАЗУМ на Боевой» жилой комплекс компании «РАЗУМ», создателя «Сердце Каспия» и «Наследие». Проект из трех 18-этажных домов расположен в самом центре Советского района, на улице Боевая. В пешей доступности: - 3 школы; - 3 детских сада; - магазины; -
Отличие: общая площадь: 22.64 м².
«РАЗУМ на Боевой» жилой комплекс компании «РАЗУМ», создателя «Сердце Каспия» и «Наследие». Проект из трех 18-этажных домов расположен в самом центре Советского района, на улице Боевая. В пешей доступности: - 3 школы; - 3 детских сада; - магазины; -
Отличие: общая площадь: 21.02 м².
РАЗУМ на Боевой жилой комплекс компании РАЗУМ, создателя Сердце Каспия и Наследие. Проект из трех 18-этажных домов расположен в самом центре Советского района, на улице Боевая. В пешей доступности: - 3 школы; - 3 детских сада; - магазины; -
Отличие: общая площадь: 22.64 м².
РАЗУМ на Боевой жилой комплекс компании РАЗУМ, создателя Сердце Каспия и Наследие. Проект из трех 18-этажных домов расположен в самом центре Советского района, на улице Боевая. В пешей доступности: - 3 школы; - 3 детских сада; - магазины; -
Отличие: общая площадь: 22.64 м².
«РАЗУМ на Боевой» жилой комплекс компании «РАЗУМ», создателя «Сердце Каспия» и «Наследие». Проект из трех 18-этажных домов расположен в самом центре Советского района, на улице Боевая. В пешей доступности: - 3 школы; - 3 детских сада; - магазины; -
Отличие: общая площадь: 22.64 м².
РАЗУМ на Боевой жилой комплекс компании РАЗУМ, создателя Сердце Каспия и Наследие. Проект из трех 18-этажных домов расположен в самом центре Советского района, на улице Боевая. В пешей доступности: - 3 школы; - 3 детских сада; - магазины; -
Отличие: общая площадь: 22.64 м².
«РАЗУМ на Боевой» жилой комплекс компании «РАЗУМ», создателя «Сердце Каспия» и «Наследие». Проект из трех 18-этажных домов расположен в самом центре Советского района, на улице Боевая. В пешей доступности: - 3 школы; - 3 детских сада; - магазины; -
Отличие: общая площадь: 22.64 м².
«РАЗУМ на Боевой» жилой комплекс компании «РАЗУМ», создателя «Сердце Каспия» и «Наследие». Проект из трех 18-этажных домов расположен в самом центре Советского района, на улице Боевая. В пешей доступности: - 3 школы; - 3 детских сада; - магазины; -
Отличие: общая площадь: 22.64 м².
«РАЗУМ на Боевой» жилой комплекс компании «РАЗУМ», создателя «Сердце Каспия» и «Наследие». Проект из трех 18-этажных домов расположен в самом центре Советского района, на улице Боевая. В пешей доступности: - 3 школы; - 3 детских сада; - магазины; -
Отличие: общая площадь: 22.64 м².
«РАЗУМ на Боевой» жилой комплекс компании «РАЗУМ», создателя «Сердце Каспия» и «Наследие». Проект из трех 18-этажных домов расположен в самом центре Советского района, на улице Боевая. В пешей доступности: - 3 школы; - 3 детских сада; - магазины; -
Отличие: общая площадь: 22.64 м².
«РАЗУМ на Боевой» жилой комплекс компании «РАЗУМ», создателя «Сердце Каспия» и «Наследие». Проект из трех 18-этажных домов расположен в самом центре Советского района, на улице Боевая. В пешей доступности: - 3 школы; - 3 детских сада; - магазины; -
Отличие: общая площадь: 21.02 м².
«РАЗУМ на Боевой» жилой комплекс компании «РАЗУМ», создателя «Сердце Каспия» и «Наследие». Проект из трех 18-этажных домов расположен в самом центре Советского района, на улице Боевая. В пешей доступности: - 3 школы; - 3 детских сада; - магазины; -
Отличие: общая площадь: 22.64 м².
РАЗУМ на Боевой жилой комплекс компании РАЗУМ, создателя Сердце Каспия и Наследие. Проект из трех 18-этажных домов расположен в самом центре Советского района, на улице Боевая. В пешей доступности: - 3 школы; - 3 детских сада; - магазины; -
Отличие: общая площадь: 22.64 м².
«РАЗУМ на Боевой» жилой комплекс компании «РАЗУМ», создателя «Сердце Каспия» и «Наследие». Проект из трех 18-этажных домов расположен в самом центре Советского района, на улице Боевая. В пешей доступности: - 3 школы; - 3 детских сада; - магазины; -
Отличие: общая площадь: 22.64 м².
